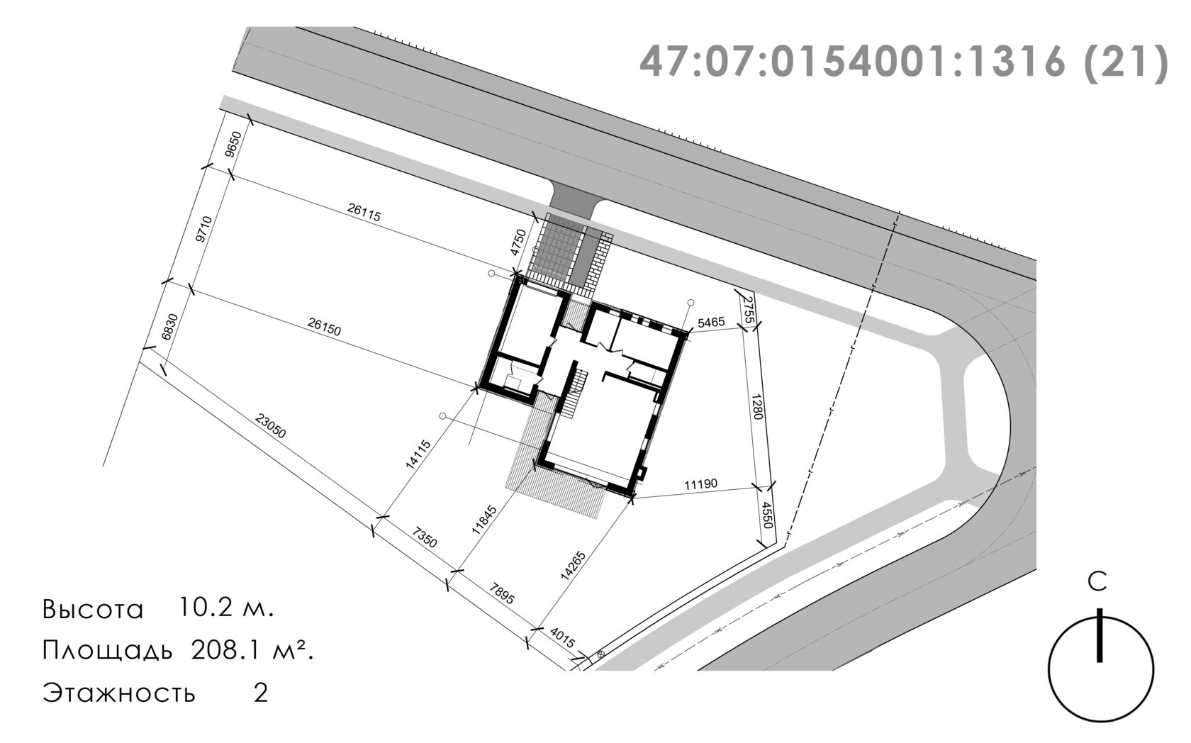
Коттеджный поселок «Негород Токсово»: Датская архитектура и свой лесной парк в 20 минутах от КАД
Представьте себе коттеджный поселок, где строгая эстетика датского минимализма сочетается с первозданной природой Карельского перешейка. Где функциональность каждого элемента — от подземных коммуникаций до фасадного ограждения — подчинена единой гармоничной концепции. Это — «Негород Токсово», новый проект бизнес-класса во Всеволожском районе, созданный для тех, кто ищет идеальный баланс между европейским комфортом и загородным уединением. Мы предлагаем участки под застройку в рамках единого дизайн-кода, а также готовые и строящиеся домовладения, выполненные в элегантном скандинавском стиле
Дома и участки в датском стиле во Всеволожском районе
Откройте для себя «Негород Токсово» — коттеджный поселок бизнес-класса во Всеволожском районе, где современный комфорт встречается с эстетикой датской архитектуры. Мы предлагаем купить земельные участки под индивидуальное строительство в рамках единого дизайн-кода, а также готовые домовладения со всеми коммуникациями. Расположенный всего в 20 минутах от КАД, в окружении озер и собственного лесного парка, «Негород Токсово» — это идеальное место для тех, кто ценит стиль, природу и высокое качество жизни
Концепция проекта: Датский стиль и гармония с природой
«Негород Токсово» — это целостная и продуманная среда, вдохновленная лучшими образцами датской архитектуры. Философия проекта — сочетание минимализма, функциональности и европейской изящности. Все коммуникации — газ, вода, электричество и даже оптоволоконный интернет — проложены под землей, чтобы ничто не нарушало визуальную чистоту пространства. Особое место в проекте занимает собственный лесной парк площадью 4,5 Га, который станет приватной зоной отдыха для жителей
Ключевые параметры
  • Класс
    Бизнес / Комфорт+
  • Район
    Всеволожский
  • Расстояние от КАД
    25 км по Новоприозерскому шоссе
  • Статус земли
    Участки (строительство в рамках дизайн-кода), готовые и строящиеся дома
  • Природное окружение
    Собственный лесной парк, близость к Кавголовским и Курголовским озерам
  • Застройщик
    Коттеджный посёлок от застройщика «Факт»
Хотите примерить на себя жизнь в стиле "хюгге"?Запишитесь на индивидуальный показ в «Негород Токсово», и мы подберем для вас идеальный
участок или дом
Инфраструктура для комфортной и активной жизни
Благоустройство в «Негород Токсово» создано для полноценного отдыха и развития. Проект предусматривает авторскую концепцию общественных зон и многофункциональный досуговый центр
  • Зоны отдыха
    Собственный лесной парк 4,5 Га, современные детские и спортивные площадки
  • Единый стиль
    Асфальтированные дороги с подземным дренажом, тротуары, велосипедные дорожки и ночное освещение создают безопасное и эстетичное пространство
  • Безопасность 24/7
    Территория полностью огорожена, въезд по пропускам через КПП с круглосуточной охраной и видеонаблюдением. Ежемесячные платежи в УК: 11 928 ₽
Инженерные коммуникации: Все для вашего комфорта
Все инженерные сети подведены к границам участков подземным способом и готовы к подключению
  • Электричество
    15 кВт на каждый участок (хватит на все нужды)
  • Водоснабжение и канализация
    Чистая вода из центральной сети. Канализация ЛОС (для готовых домовладений)
  • Магистральный газ
    Централизованное газоснабжение
  • Дороги и интернет
    Асфальтированные проезды, тротуары и велодорожки. Высокоскоростной оптоволоконный интернет
«Негород Токсово» — это не просто участки ИЖС, это целостная и гармоничная среда для жизни, вдохновленная архитектурой Дании. Наша философия — создать эстетичное пространство, где каждый элемент, от фасадного ограждения до ночного освещения, подчинен единому стилю. Подземные инженерные сети сохраняют чистоту линий, а собственный лесной парк и авторские зоны благоустройства обеспечивают комфортный досуг для всей семьи
Расположение и как добраться
Поселок расположен в одном из самых живописных мест Всеволожского района, в окружении озер и лесов, но с отличной транспортной доступностью

Координаты для навигатора: 60.198910, 30.530769

На автомобиле:
Удобный выезд на Новоприозерское шоссе позволяет добраться до КАД всего за 20-25 минут без пробок.

На общественном транспорте:
Прямой автобус №619 от ст. метро «Девяткино». Также можно добраться на электричке от Финляндского вокзала до ж/д станции «Осельки» (2 км от поселка).
Выберите свой дом в стиле Дании
Ознакомьтесь с генеральным планом и доступными предложениями в «Негород Токсово»: выберите участок для строительства дома по вашему проекту (в рамках дизайн-кода) или готовое домовладение от застройщика
Преимущества жизни в КП «Негород Токсово»
Выбирая домовладение в «Негород Токсово», вы инвестируете в качество жизни. Все центральные коммуникации (газ, вода, электричество 15 кВт) уже подведены. Закрытая территория с круглосуточной охраной и КПП гарантирует вашу безопасность. А уникальное расположение рядом с Кавголовскими озерами и собственный парк в 4,5 Га дарят возможность наслаждаться природой каждый день, оставаясь при этом всего в 25 км от КАД. Запишитесь на просмотр и оцените все преимущества лично
Владимир Сазонов
Анастасия Сазонова
Телефон: +7(999)044-21-48
Почта: vladimir@sazonovestate.ru
Телефон: +7(931)202-86-72
Почта: anastasia@sazonovestate.ru
Заместитель руководителя агентства
Руководитель агентства «Sazonovestate»
Остались вопросы?
Заполните форму и мы свяжемся с вами
Нажимая на кнопку, вы соглашаетесь с политикой конфиденциальности